The Lynnhaven

The Lynnhaven

The Lynnhaven is the newest home in the Craig Builders complement of plans. It is designed to grow with your family and accommodate your changing lifestyle with flexibility and finesse.

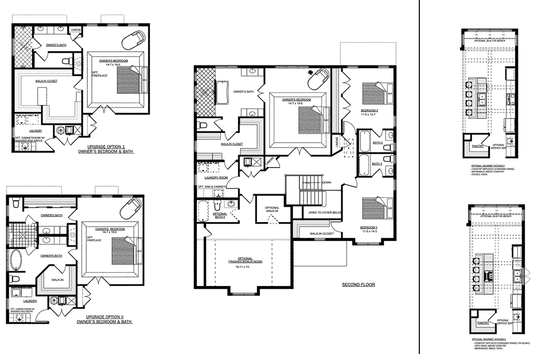
The lavish Owner’s Suite has all the usual upgrades included – from double-door entry and a cozy sitting area to dual walk-in closets and a beautiful Bath – all warmed by natural light. The Owner’s Bath offers two large vanities, a private water closet and a huge shower; it conveniently opens to the Laundry Room. Every additional Bedroom in the Lynnhaven is an entire suite, with a full Bathroom and plenty of closet space.

The Lynnhaven offers a host of features that are both beautiful and practical. The Kitchen features a nine-foot island with options for a central cooktop. A walk-in Pantry and Serving Bar allow the clutter to be hidden. The Lynnhaven has three dining areas: the island, the Dinette and the formal Dining Room, which includes a pass-through to the Kitchen. An optional handicap-accessible room off the Great Room can function as a Study or Guest Room and includes an upgraded Bathroom and walk-in closet. The oversized Garage can have doors on the front or side and has space for cars, garbage and storage. The adjacent Mud Room has separate access. The Basement also offers flexible function – attractive double doors divide the finished and unfinished spaces.

Exterior of Craig Builders home in Foothill Crossing and Westlake

Floorplans

craig-builders-LYNNHAVEN-BASEMENT-FIRST-FL
Basement plan for the Lynnhaven home plan from Craig Builders
Second floor plan for the Lynnhaven home plan from Craig Builders.
Front elevation plan for the Lynnhaven home plan from Craig Builders.
Select Floor

Located In

No communities found.

Home Type

Detached Single Family

Square Ft. Finished

3,019

Main Level Living

No

Bedrooms

4 - 6

Bathrooms

4.5 - 6.5

Learn More

    First Name *
    Last Name *
    Email *



    Featured Homes

    The Avondale Courtyard

    The Avondale Courtyard
    Base price $0 depending on community
    2073 sqft

    The Avondale Courtyard features a main level owner's suite with additional bedrooms upstairs, plus a…

    request info
    The Bayshire

    The Bayshire
    Base price $0 depending on community
    2765 sqft

    As one of Craig Builders’ most popular family oriented homes, The Bayshire blends classic features…

    request info
    The Brookfield Courtyard

    The Brookfield Courtyard
    Base price $599,900 depending on community
    2861 sqft

    The Brookfield Courtyard is a main level living home with a private outdoor courtyard

    request info
    The Cambridge

    The Cambridge
    Base price $0 depending on community
    2519 sqft

    The Cambridge is a slightly larger version of the popular Chesapeake home design

    request info
    The Fairway

    The Fairway
    Base price $0 depending on community
    2519 sqft

    The Fairway offers an open floor plan with a two-story Great Room that boasts an entire wall of wind…

    request info
    The Lynnhaven

    The Lynnhaven
    Base price $0 depending on community
    3019 sqft

    The Lynnhaven is the newest home in the Craig Builders family of plans

    request info
    The Centennial

    The Centennial
    Base price $1,349,900 depending on community
    2030 sqft

    3 Bedrooms on the main level plus a study! Optional basement and/or Bonus Room
    Belvedere

    request info
    The Hillstone

    The Hillstone
    Base price $0 depending on community
    2777 sqft

    The Hillstone was originally built for the Hillstone family and has maintained its popularity among …

    request info